
Крихітний будинок у формі метелика.
Життя в крихітних будинках так само залишається популярним трендом, поширюючись по всьому світу. Деякі проекти перетворилися, якщо не на культові, то вже точно привертають до себе увагу. Не стала винятком і модель Swallowtail від австралійського виробника Tiny House Company, яка заслуговує на широке визнання за майстерне поєднання дизайну, міцної та довговічної конструкції, гнучкого планування та неймовірної практичності.

Позачасова модель Swallowtail.
Австралійська компанія Tiny House Company з Солсбері, що спеціалізується на проектуванні та будівництві крихітних будинків, нещодавно представила нову і найприголомшливішу модель міні-житла. Названа Swallowtail («Ластівчин хвіст»), вона уособлює позачасовий дизайн, надійність, довговічність та максимальну практичність. А все тому, що окрім привабливої форми та стильного оформлення екстер'єру, ця модель розроблена таким чином, щоб зростати та розширюватись у міру зміни потреб власників (не в розмірах, а в плані зручностей, звичайно ж). “Збалансований будинок не може залишатися незмінним вічно, він повинен адаптуватися до змін усередині сім'ї з часом”, – обґрунтовано вважають розробники.

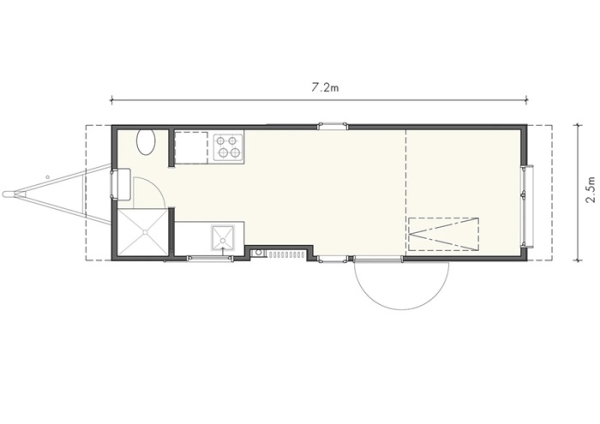
План моделі Swallowtail. | Фото: tinyhousecompany.com.au.

Фасад облицьований фактурною фанерою та профнастилом.
Насамперед цей вражаючий будинок був спроектований у гармонії з природою і може витримувати певні погодні труднощі, такі як сильна спека або потужні вітри. Щоб крихітний притулок довжиною всього 7,2 метра і шириною 2,4 м могло підтримувати оптимальну температуру всередині, захищаючи житловий простір від вологи, холоду і вітру, розробники подбали про належну теплоізоляцію даху, підлоги і стін, а також використовували міцну облицювання, що забезпечує водостійкість і забезпечує водостійкість.

Відкрите планування Swallowtail.
Незважаючи на те, що практичний мобільний будинок спроектований таким чином, щоб залишатися сухим усередині, його дах у формі метелика став прихованою основою системи збирання води. Оснащена вбудованим ринвою і трубою, елегантно прихованими за дерев'яним екраном, вона вносить свій внесок у самодостатність будинку, яку підтримують: сонячні панелі, газові балони, система очищення дощової води та стоків.

Домашній офіс.
Приголомшливій естетиці крихітного будинку посприяла не тільки його форма та облицювання з використанням різних матеріалів та фактур, великі скляні двері та вікна надають будові особливого шарму. При цьому вони не тільки роблять житловий простір світлішим та об'ємнішим, кожен елемент розташований так, щоб забезпечити природну наскрізну вентиляцію. Стратегічно грамотне розташування дверей та вікон дозволяє в майбутньому розширювати простір за рахунок вбудованих меблів та інших елементів відповідно до бюджету та побажання власників. До речі, чудовим доповненням до загальної ідеї комфортного та привабливого будинку стали скляні жалюзі, встановлені на всіх вікнах.

Сходи ховаються в конструкцію перекриття.

Підйомно-складні сходи.
Автори Novate.ru хотіли б відзначити, що завдяки відсутності вбудованих меблів або шаф та наявності висувних сходів в основній житловій зоні, можливі різні варіанти планування. Таким чином, Swallowtail може адаптуватися до мінливих потреб власників незалежно від того, використовується він як основне житло, дача, студія, офіс, додаткова житлова площа на задньому дворі та ін. Незважаючи на те, що лофти зазвичай стають затишними спальнями, такий розподіл житлових зон підходить не всім. Конструкція Swallowtail дозволяє розмістити спальне місце на будь-якому з рівнів. Універсальність цього житлового простору підвищується за рахунок використання особливих сходів замість громіздких сходових клітин. Вона зовсім не займає місця, оскільки «зникає» у стелі, коли не використовується.

Сучасна кухня в Swallowtail.
Кухонна зона також більш універсальна, ніж у більшості будинків. Тут достатньо місця як для обіднього столу, так і для окремого робітника, без використання вбудованих меблів або барних стійок. Незважаючи на наявність всього необхідного, кухня спроектована таким чином, щоб згодом її можна було розширювати, коли власники задумають додати щось або змінити. Ще одна оригінальна особливість – дзеркальний фартух на всю ширину кухні. Відбиваючи вікно на протилежному боці, воно збільшує простір, роблячи його глибшим та світлішим.

Вітальня легко перетворюється на спальню.
Під лофтовим рівнем передбачена вітальня з диваном-ліжком, який може стати основним місцем для сну чи розважальною зоною. Наявність вікон та близькість скляних дверей робить цей простір особливо світлим та інформативним, оскільки можна за будь-якої погоди спостерігати за навколишнім світом.

Упорядкована ванна кімната.
Незважаючи на максимальну гнучкість планування, проектом передбачено повноцінну ванну кімнату, яка також оснащена вікном зі скляними жалюзі. Вона захована за перегородками, а центральна частина, де встановлена тумба з раковиною, може залишатися як відкритою, так і закриватися за допомогою дверей або щільної штори.
Насамкінець варто відзначити, що базова модель «Ластівчин хвіст» пропонується за цілком демократичною ціною – близько 51 тис. доларів. Якщо замовники побажають змінити або доповнити комплектацію, її вартість збільшуватиметься відповідно до обраних опцій.
Продовжуючи тему пропонуємо зазирнути в не менш дивовижні та затишні крихітні будинки, спроектовані командою португальської компанії Madeiguincho.
А ось пізнавальне відео нашого каналу:
